Beschrijving

Aan de rustige Koolhoverweg 26 in het landelijke Bocholtz staat deze verrassend ruime en instapklare woning te koop. De woning is in 2018 volledig gerenoveerd en voldoet aan alle moderne woonwensen: energielabel A, volledig verduurzaamd en gasloos. Met maar liefst 220 m² woonoppervlakte biedt dit charmante huis een unieke combinatie van sfeer, comfort en ruimte. Dankzij de royale leefoppervlakte en de slimme indeling is dit een woning met eindeloos veel mogelijkheden, ideaal voor gezinnen, thuiswerken, hobby’s of levensloopbestendig wonen.

Interesse in deze woning? Stuur een mail naar info@laan20.nl en wij nemen contact met je op voor het plannen van een bezichtiging.

Globale indeling
Souterrain
Betegelde provisiekelder met opstelplaats voor zonneboiler (10,6 m²).

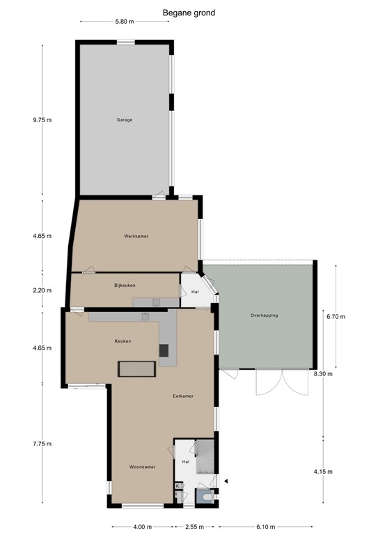
Begane grond
De begane grond is volledig voorzien van vloerverwarming.
Entree met meterkast en berging. Toegang naar toilet, woonkamer en eerste verdieping. 
Royale, lichte woonkamer met open keuken, totaal 85 m². 
Luxe leefkeuken voorzien van Belling fornuis (inductie) met drie ovens, koelkast, combi-oven, vaatwasser en afzuigkap. 
Vanuit de keuken bereikt u de bijkeuken/wasruimte (12,7 m²) en een multifunctionele ruimte van 40 m². Deze is flexibel in te richten als kantoor, speelkamer of hobbyruimte en leent zich bovendien uitstekend als slaapkamer voor wie levensloopbestendig wil wonen.

Eerste verdieping
Overloop met een vaste trap naar de 2e verdieping.
Slaapkamer I (11,6 m²) gelegen aan de voorzijde van de woning.
Slaapkamer II (17,6 m²) voorzien van airconditioning en slaapkamer III (11,2 m²), beide aan de achterzijde van de woning gelegen.
Moderne badkamer (4,6 m²) voorzien van dubbele douche, zwevend toilet en wastafel. 

Tweede etage 
De tweede  verdieping is in 2023 gerenoveerd. Toegang naar slaapkamer IV en twee bergruimtes. 
Slaapkamer IV (13 m²) is voorzien van een dakkapel. 

Extern
De voordeur is bereikbaar via de oprit, waar met gemak twee personenauto’s kunnen worden geparkeerd. 
Aan de linkerzijde van de woning bevindt zich bovendien een poort met extra parkeergelegenheid.
De tuin ligt aan de zij- en achterzijde en is voorzien van een prachtige houten overkapping. 
Daarnaast beschikt de tuin over een ruime dubbele garage met elektrische sectionaalpoort (totaal 57 m²).

Omgeving 
De woning is gelegen aan een rustige straat in het gemoedelijke en groene Bocholtz middenin prachtige Zuid-Limburgse heuvellandschap. 
Dagelijkse voorzieningen, basisscholen en sportfaciliteiten zijn in de nabije omgeving aanwezig. Bocholtz ligt gunstig ten opzichte van uitvalswegen richting Heerlen, Kerkrade en Maastricht, waardoor ook steden en voorzieningen in de regio eenvoudig bereikbaar zijn. De omgeving nodigt uit tot genieten van het buitenleven, met volop wandel- en fietsroutes door het heuvelachtige landschap en het omliggende groen direct in de nabijheid.

Relevante cijfers en informatie
- De woning is in 2018 volledig gerenoveerd
- Energielabel A 
- Het betreft een gasloze woning. Verwarming en warm water via pelletketel en zonneboiler. Deels voorzien van vloerverwarming. 
- Volledig geïsoleerde woning (dak, spouwmuur en vloer)
- Kunststof kozijnen met HR++ beglazing
- Het dak is in 2011 vernieuwd en geïsoleerd
- Voorzien van 4 airco units en van 23 zonnepanelen (eigendom)
- Deels voorzien van rolluiken
- Aanvaarding in overleg

Alle verstrekte informatie moet beschouwd worden als een uitnodiging tot het doen van een bod of om in onderhandeling te treden. Er kunnen geen rechten worden ontleend aan deze woninginformatie. Alle maten zijn circa maten.
Ter bescherming van de belangen van zowel kopers als ook verkopers wordt uitdrukkelijk gesteld dat een koopovereenkomst met betrekking tot deze onroerende zaak eerst dan tot stand komt nadat kopers en verkopers de koopovereenkomst hebben getekend (schriftelijkheidsvereiste).

Kenmerken