Beschrijving

Welkom aan de Paumstraat 53 in Bocholtz – een verrassend ruime en instapklare woning waar comfort en sfeer perfect samenkomen!

Deze fijne woning is in 2017 gerenoveerd en biedt alles wat je zoekt: een royale en lichte leefruimte op de begane grond, drie slaapkamers en een heerlijke zonnige tuin waar je kunt genieten van het buitenleven.

Interesse in deze woning? Stuur een mail naar info@laan20.nl en wij nemen contact met je op voor het plannen van een bezichtiging.

Globale indeling

Souterrain
Provisiekelder (7,9 m²), net en droog. 

Begane grond
Via de entree/hal met meterkast heb je toegang tot de woonkamer en het toilet. De begane grond is afgewerkt met een combinatie van een tegelvloer en een warme parketvloer, wat zorgt voor een sfeervolle uitstraling. Nette toiletruimte voorzien van een fonteintje.
Dankzij de aanbouw is een lichte en royale woonkamer ontstaan. De benedenverdieping heeft een totale oppervlakte van ca. 49 m². 
De moderne keuken vormt het centrale punt van de woonkamer. De aanbouw is bovendien uitgerust met comfortabele vloerverwarming.

De leefkeuken beschikt over een stijlvol stenen werkblad en diverse inbouwapparatuur, waaronder een vaatwasser, koelkast, oven en inductiekookplaat.
Via de schuifpui sta je in direct contact met de tuin, waardoor binnen en buiten naadloos in elkaar overlopen.

Eerste verdieping
De overloop geeft toegang tot drie slaapkamers van respectievelijk ca. 12 m², 11,7 m² en 8,1 m².
De compacte badkamer (ca. 2,4 m²) voorzien van een douche en wastafel.
De gehele eerste verdieping is afgewerkt met een laminaatvloer, wat zorgt voor een verzorgde en uniforme uitstraling.
Via een vaste trap is de zolderverdieping bereikbaar.

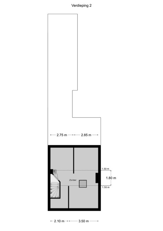
Tweede verdieping
Via een vaste trap bereik je de tweede verdieping. Een fijne, multifunctionele ruimte die zich uitstekend leent voor het realiseren van een extra slaapkamer. Momenteel is deze verdieping voorzien van een dakraam, wat zorgt voor prettige daglichttoetreding.
Hier bevindt zich tevens de opstelplaats van de HR-combiketel (Nefit, 2017, eigendom).

Extern
De praktische bijkeuken (ca. 8,9 m²) voorzien van witgoedaansluitingen biedt extra gebruiksgemak.
De fraaie, zonnige tuin beschikt over een royale overkapping met berging.
Hier beleef je lange zomeravonden in alle rust, terwijl de extra bergruimte zorgt voor volop praktische mogelijkheden.

Omgeving
De woning is gelegen aan een rustige straat in het gemoedelijke en groene Bocholtz middenin prachtige Zuid-Limburgse heuvellandschap.
Dagelijkse voorzieningen, basisscholen en sportfaciliteiten zijn in de nabije omgeving aanwezig. Bocholtz ligt gunstig ten opzichte van uitvalswegen richting Heerlen, Kerkrade en Maastricht, waardoor ook steden en voorzieningen in de regio eenvoudig bereikbaar zijn. De omgeving nodigt uit tot genieten van het buitenleven, met volop wandel- en fietsroutes door het heuvelachtige landschap en het omliggende groen direct in de nabijheid.

Relevante cijfers en informatie
- Perceeloppervlakte 220 m²
- Woonoppervlakte 108 m²
- Energielabel E (opgesteld voor deels vervangen kozijnen, vloer- en dakisolatie, pellet kachel en nieuwe HR- combiketel)
- HR combiketel, Nefit 2017 (eigendom) 
- Dakisolatie en vloerisolatie (in de aanbouw)
- Vloerverwarming in de badkamer (elektrisch) en in de aanbouw
- Kozijnen uitgevoerd kunststof, dubbel en HR++ beglazing 
- Voorzien van horren en grotendeels rolluiken
- Aanvaarding in overleg, op korte termijn mogelijk

Alle verstrekte informatie moet beschouwd worden als een uitnodiging tot het doen van een bod of om in onderhandeling te treden. Er kunnen geen rechten worden ontleend aan deze woninginformatie. Alle maten zijn circa maten.
Ter bescherming van de belangen van zowel kopers als ook verkopers wordt uitdrukkelijk gesteld dat een koopovereenkomst met betrekking tot deze onroerende zaak eerst dan tot stand komt nadat kopers en verkopers de koopovereenkomst hebben getekend (schriftelijkheidsvereiste).

Kenmerken