Beschrijving

Aan de Bosstraat in Vaals bevindt zich deze imposante vrijstaande woning met bijzondere indeling in Bauhaus Stijl. Op straatniveau de garage, tussenniveau de kelders en op tuinniveau het woongedeelte in bungalow stijl. De Bosstraat kenmerkt zich door de monumentale rode beuken en het vele groen zowel voor als achter de bebouwing. Zowel het centrum van Vaals als de groene buitengebieden zijn op 5 minuten loopafstand. 

…een huis met mogelijkheden…
…rust en ruimte en toch hartje Vaals…

De stijl van de woning kenmerkt zich door simpliciteit, symmetrie en functionaliteit, elementen die allemaal terug te vinden zijn in deze bungalow. Dit is door de ligging, indeling en stijl een huis vol potentie dat de mogelijkheid biedt om naar eigen smaak verder aan te passen.

Globale indeling

Straatniveau (garage)
Inpandige ruime garage voor 2 auto's (45m²) met elektrische sectionaalpoort. Voor de garage en in de oprit is plek voor 2 personenauto's. Vanuit de garage middels een trap toegang naar de tussenverdieping en van daaruit naar de keuken.

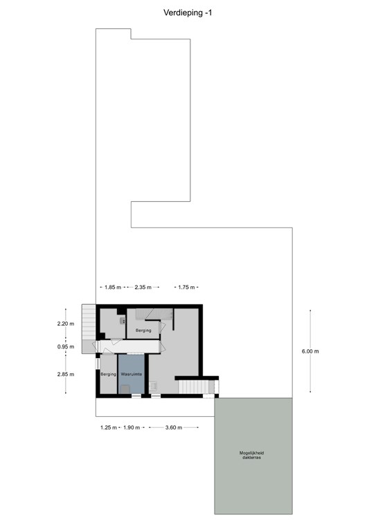
Tussenverdieping (kelder)
Hier bevinden zich de kelderruimtes met een totale oppervlakte van 40m².
Tevens is er een wasruimte met witgoedaansluitingen, toegang naar de tuin. CV-ruimte met HR-combiketel (Nefitketel uit 2014 is eigendom). Vanuit de tussenverdieping is er middels een trap toegang naar de keuken.

Tuinniveau (woongedeelte) 
Imposante entree en ruime hal waar de elementen van Bauhaus Stijl duidelijk zichtbaar zijn. Royale kastenwand, garderobe, gastentoilet en badkamer I (met douche en wastafel) bevinden zich aan de voorzijde van de woning. In het midden van de woning zijn de royale living en keuken gesitueerd. Met prachtig zicht en veel contact met de achtertuin. De living en keuken samen hebben een oppervlakte van 70m². Living met openslaande deuren naar de tuin en open haard.  Keuken in hoekopstelling, granieten blad, Smeg apparatuur, gasfornuis met oven, koel-vriescombinatie, vaatwasser en afzuigkap. 

Verbinding tussen de woonvleugel en de slaapvleugel. Toegang tot de tuin met openslaande deuren.

Slaapvleugel met drie ruime slaapkamers en een badkamer.
Twee exact dezelfde slaapkamers van 14m² met inbouwkast, toegang naar de tuin en wastafel. 
Slaapkamer III (19m²) met toegang naar de tuin. De slaapkamers zijn voorzien van laminaat.
Badkamer II (8m²) met ligbad, dubbel wastafel en toilet. Sanitair is gedateerd, maar goed onderhouden. 

Tuin
De op het Zuidoosten gelegen tuin biedt veel privacy. Balkon aan de voorzijde.

Relevante cijfers en informatie
- Bouwjaar 1965
- Houten kozijnen met HR++ glas
- Energielabel D
- HR - combiketel, eigendom, 2014
- gebruiksoppervlakte wonen 198m²
- Gebruiksoppervlakte overige inpandige ruimte 89m²
- Gebouwgebonden buitenruimtes 92m²
- Totaal perceeloppervlakte  900m²

Je wijk
De Bosstraat ligt in hartje stad en is toch rustig. Het is een mooie, goed onderhouden woonbuurt. Door de centrale ligging in het centrum van Vaals, zijn alle voorzieningen op loopafstand. Van supermarkt en warenhuis tot en met restaurant, ijssalon of café. Maar ook peuterspeelzaal, basisschool en medische of andere zorgvoorzieningen liggen om de hoek. En natuurlijk sta je met één been in het Limburgse heuvelland, om te wandelen, te fietsen of gewoon van het leven te genieten.

Je gemeente
De gemeente Vaals vervult een regiofunctie voor de omringende kernen en het landelijke gebied. Dat betekent dat het voorzieningenniveau van Vaals op peil is en blijft. Vaals heeft alles om je leven aangenaam te maken. De levendige warenmarkt op dinsdag is daar het meest duidelijke voorbeeld van. Het “marktmenu” bevat een veelzijdig en internationaal aanbod aan (streek) producten. Met als ingrediënten: onvervalst “Vols” dialect, Duits, Frans, maar natuurlijk ook gewoon Nederlands.

Je regio
Voor wie het verderop wil zoeken: vanaf de Bosstraat ben je in een mum van tijd op een rondweg, doorgaande weg of snelweg. Die brengt je direct waar je zijn moet. De wereld ligt aan je voeten. Of dat nu Heerlen, Maastricht, Aken of Luik is, doet er niet toe. Gewoon om te shoppen of voor de cultuur. De natuur en het landschap van het Limburgse Heuvelland zijn een verhaal apart. Ideaal om in alle rust en stilte te verkennen: met de auto, het openbaar vervoer, per fiets of te voet.



Alle verstrekte informatie moet beschouwd worden als een uitnodiging tot het doen van een bod of om in onderhandeling te treden. Er kunnen geen rechten worden ontleend aan deze woning informatie. Alle maten zijn circa maten.
Ter bescherming van de belangen van zowel kopers als ook verkopers wordt uitdrukkelijk gesteld dat een koopovereenkomst met betrekking tot deze onroerende zaak eerst dan tot stand komt nadat kopers en verkopers de koopovereenkomst hebben getekend (schriftelijkheidsvereiste).

Kenmerken