Beschrijving

Unieke villa met rijke geschiedenis in het centrum van Vaals. 
De complete villa is met veel karakter en goede materialen gerenoveerd . 

Het betreft het voormalig hotel-restaurant Lindenhof en heeft een woonoppervlakte van maar liefst 564 m².
Naast goede materialen is er ook veel aandacht besteed aan duurzaamheid. De energiezuinige villa heeft energielabel B en is volledig geïsoleerd en biedt grotendeels vloerverwarming. 
De fraaie stadstuin biedt voldoende rust en privacy en is van alle gemakken voorzien!

Met maar liefst 10 slaapkamers en drie badkamers zijn er legio aan mogelijkheden!
De bestemming van de villa is centrum bestemming. 


Globale indeling 

Begane grond
Via de natuurstenen buitentrap loop je naar de entree. Tochtportaal met toegang tot de hal. Hier zie je direct dat dit een huis boordevol karakter en sfeer is. 
De hal (20 m²) biedt toegang tot de wasruimte, toiletruimte, woonkamer, keuken, het souterrain, de tuin en het imposante trappenhuis. Met een imposante plafondhoogte van meer dan 3,5 meter. De gehele begane grond is voorzien van vloerverwarming.
Woonkamer (36 m²) met tegelvloer en toegang tot de bibliotheek (12 m²). Ruim toilet met fontein. 
Keuken en eetkamer van totaal 45 m². De keuken is voorzien van een vaatwasser, koelkast, oven en kookplaat (inductie).  Via de dubbele deuren in de keuken bereikt men de zonnige stadstuin. 

Eerste verdieping
Halverwege de prachtige houten trap bereikt men de eerste verdieping. Overloop met toegang tot werkkamer (11 m²), slaapkamer een (34,5 m²), slaapkamer twee (22,8 m²) en slaapkamer drie (16,7 m²). Badkamer (18 ²) voorzien van vrijstaand ligbad, dubbele inloopdouche, toilet en wastafel. 

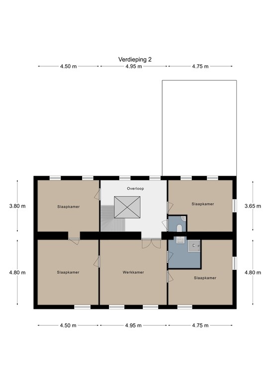
Tweede verdieping 
De statige trap gaat verder naar de tweede verdieping. Overloop met toegang tot de woonkamer/werkkamer (24 m²), slaapkamers en badkamer.  
Slaapkamer vier (16m²). en slaapkamer vijf (12 m²). Slaapkamer zes (17m²) en zeven ( 21,6m²)  Badkamer (4,5 m²) met douche, wastafel en toilet. Separaat toilet. 

Derde verdieping 
De bergzolder bereikt men via een vlizotrap in de werkkamer/woonkamer. Ook deze ruimte is goed afgewerkt. 
Hier bevindt zich tevens de opstelplaats voor de Nefit-  HR combiketel (2023, eigendom). 

Souterrain 
Het gehele souterrain is voorzien van vloerverwarming. 
Waskamer (10 m²).
Nette toiletruimte. 
Slaapkamer acht (35 m²) en slaapkamer negen (26 m²). Slaapkamer tien (17 m²) met bergkasten. Badkamer (4,2 m²) voorzien van ligbad en wastafel. 
Fitness ruimte met sauna (30 m²). 
In het souterrain bevindt zich tevens een originele waterput.
Het souterrain verschaft tevens toegang tot de tuin. 
Heerlijke ruimtes die in de zwoele zomerdagen heerlijk koel is. Maar in de winter aangenaam warm door de vloerverwarming. 

Exterieur
Fraai aangelegde stadstuin gelegen op het noorden maar door de ligging steeds 'de keuze tussen zon of schaduw. Met een ruim terras met royale 
overkapping van 37 m² van smeedijzer en glas. Zeer aangenaam om ook met minder weer te genieten van buiten. 
Toegang tot het souterrain en de buitenkelder met opslagruimte en de originele rook- en pekelkamer.  

Omgeving 
De woning is gelegen in een zijstraat van het centrum van Vaals. Vele voorzieningen, supermarkt, winkels, openbaar vervoer en basisschool liggen op loopafstand.
Ook de Duitse en Belgische bus zijn op 3 minuten loopafstand bereikbaar.
Vanaf de Lindenstraat bent u in een mum van tijd op een rondweg, doorgaande weg of snelweg. Die brengt u direct waar u zijn moet, of dat nu Heerlen, Maastricht, Aken of Luik is. De woning ligt direct aan het groen met vele mooie fiets en wandelroutes.

Relevante cijfers en informatie
- Bouwjaar woning 1775
- Vanaf 2013 compleet gerenoveerd waaronder dak, stucwerk, vloeren, isolatie en kozijnen, elektriciteit en waterleidingen, CV, vloerverwarming, tuinaanleg en zonnepanelen.
- Energielabel B
- Voorzien van houten en kunststof kozijnen met HR++ beglazing 
- Volledig geïsoleerd 
- Nefit CV combi-ketel 2023 (eigendom). Die voldoende capaciteit heeft voor het verwarmen van de gehele villa. 
- Vloerverwarming begane grond en souterrain 
- Voorzien van zonnepanelen (30 stuks, 2023) 
- Woonoppervlakte 564 m² 
- Overige inpandige ruimte 26 m² 
- Perceeloppervlakte 405 m² 
- Aanvaarding in overleg, bij voorkeur zomer 2026 

Alle verstrekte informatie moet beschouwd worden als een uitnodiging tot het doen van een bod of om in onderhandeling te treden. Er kunnen geen rechten worden ontleend aan deze woning informatie. Alle maten zijn circa maten.
Ter bescherming van de belangen van zowel kopers als ook verkopers wordt uitdrukkelijk gesteld dat een koopovereenkomst met betrekking tot deze onroerende zaak eerst dan tot stand komt nadat kopers en verkopers de koopovereenkomst hebben getekend (schriftelijkheidsvereiste).

Kenmerken