Te koop: Rijksweg 47, 6271 AC Gulpen

€ 649.000,- k.k.

Beschrijving

Robuust herenhuis met legio aan mogelijkheden!
Met een verhuurde bedrijfsruimte op een A- locatie in het bruisende hart van Gulpen, te midden van alle voorzieningen en openbaar vervoer.

Dit bijzondere statige pand combineert authentieke charme met veelzijdige gebruiksmogelijkheden - ideaal voor wie wonen en werken wil combineren of op zoek is naar ruimte voor bijvoorbeeld dubbele bewoning. Ook een waardevaste belegging behoort tot de mogelijkheden.

Woonhuis

Souterrain
Kelder - 21,85m². Voorzien van HR- combiketel (AWB, eigendom)
Hobbyruimte I - 36m²
Hobbyruimte II - 23m² (vanuit deze ruimte bevond zich in het verleden een trap naar de woonkamer op de begane grond).
Berging I - 22 m² met toegang naar de tuin.
Berging II10 m² ook met toegang naar de tuin.
Berging III 16 m² met veel raampartijen.
Toiletruimte.

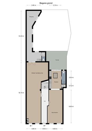
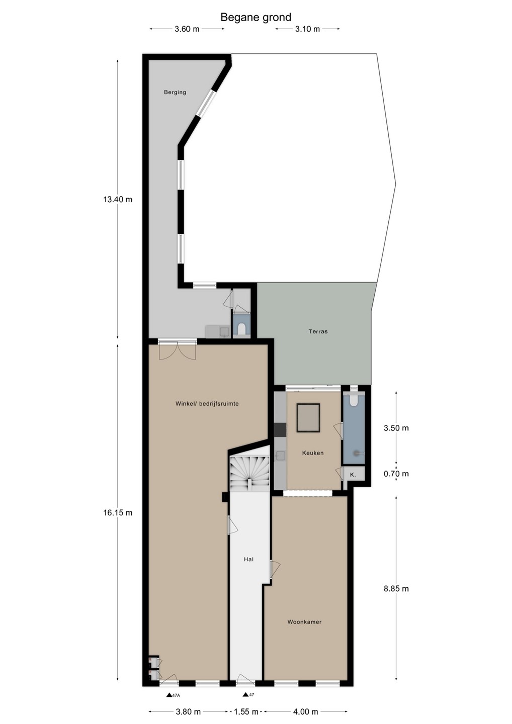
Begane grond woonhuis
Entree met een statig trappenhuis (17m²). Toegang naar de kelder.
Woonkamer met schouw en eiken parketvloer. Hoge plafonds. Oppervlakte 35m².
Keuken met een nette inbouwkeuken voorzien van gasfornuis, afzuigkap, koelkast, vrieskast en afwasmachine. De keuken is voorzien van een vloertegel. Aansluitend bevindt zich de nette badkamer met zwevend toilet, douche en wastafel. Vanuit de keuken is het dakterras middels een schuifpui bereikbaar.

Eerste verdieping (totale oppervlakte 80m²)
Overloop met toegang naar drie slaapkamers en de badkamer. Vaste trap naar de tweede verdieping.
Slaapkamer I - 19,4m²
Slaapkamer II - 16m²
Slaapkamer III - 14,6 m²
Alle slaapkamers kenmerken zich door de hoge plafonds van 3,28 meter en zijn voorzien van vloerbedekking.
Royale badkamer, gedateerd - 13,9 m² met ligbad, toilet en wastafel.

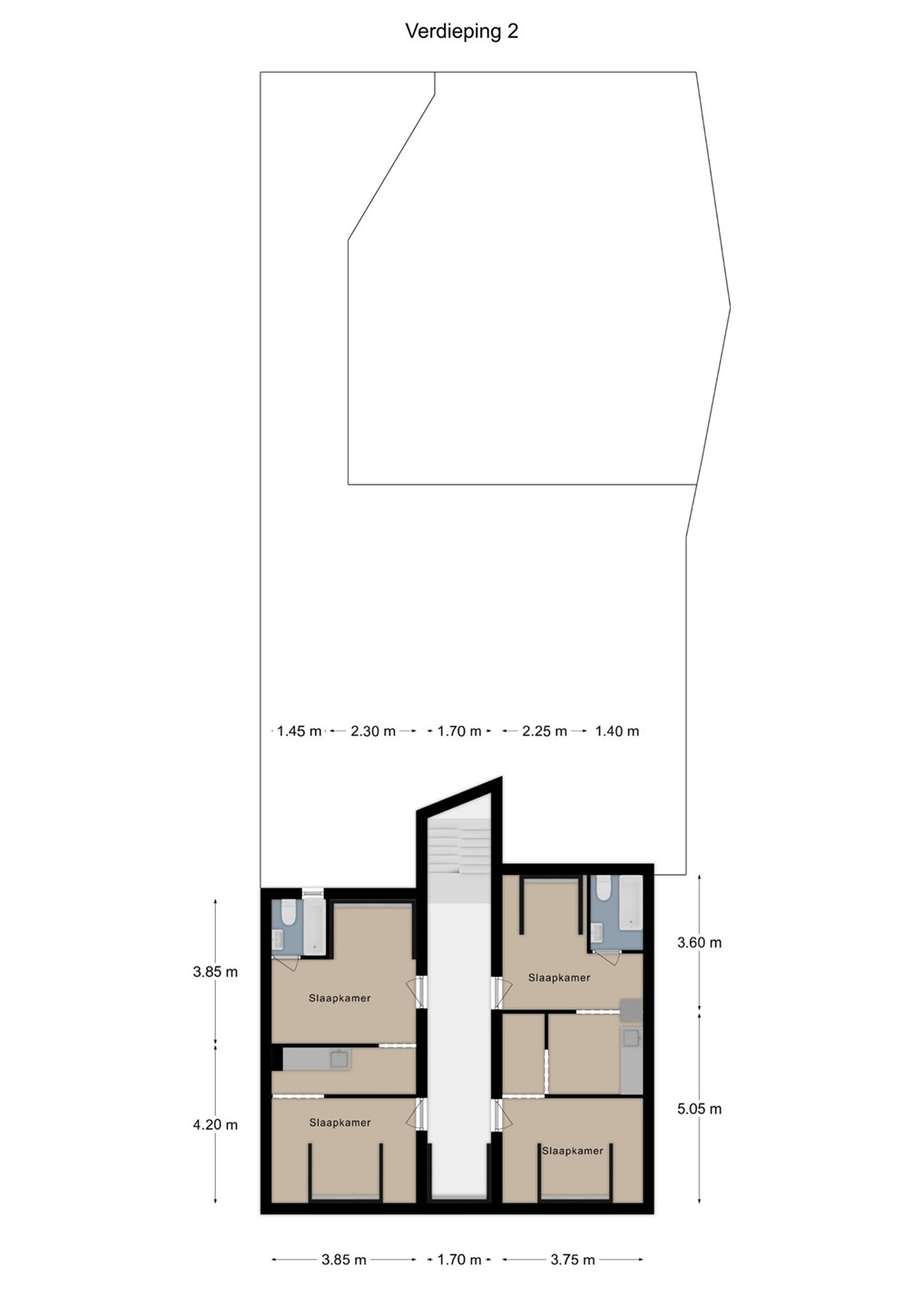
Tweede verdieping (Totale oppervlakte 80m²)
Overloop met toegang naar 4 (slaap) kamers. En vlizotrap naar de zolderverdieping. De kamers zijn nu ingericht als twee appartementen met eigen badkamer en keukenblok. Gedateerd maar aansluitingen aanwezig.

Slaapkamer IV - 16 m²
Slaapkamer V - 14,43 m²
Slaapkamer VI - 13,14 m²
Slaapkamer VII - 18,9 m²

Derde verdieping
Bergzolder van 38,8 m²

Verhuurde winkelruimte op A- locatie
Zeer nette winkel van 70 m² en een ruim magazijn, keuken en toilet van ca. 25 m². De winkel heeft een eigen ingang.
Huuropbrengsten op aanvraag.

Extern
Dakterras op de begane grond van ongeveer 24 m², met een trap die leidt naar de tuin met een gazon en beplanting.

Locatie
Centraal Gelegen in hartje Gulpen, op A- locatie, naast toegang van winkelpassage en busstation. De Rijksweg in Gulpen is een belangrijke provinciale weg tussen Aken / Vaals en Maastricht. Het bruisende centrum van Gulpen biedt naast de vele winkels ook een rijk Horeca leven. Het hart van het Heuvellandschap met regionale aantrekkingskracht. Te bereiken per auto en bus en meerdere parkeerfaciliteiten. Een lagere - en middelbare school, zwembad en diverse sportfaciliteiten maken het een aantrekkelijke woonplaats. Binnen enkele tellen ben je in het beekdal van Gulp en/of Geul of de heuvel op naar de Gulperberg. Een ideale plek om te genieten van de fraaie heuvelachtige omgeving o.a. te voet of per fiets. Ook de toerist weet dit inmiddels steeds meer te ontdekken.

Relevante cijfers en informatie
- Bouwjaar 1900
- Energielabel Winkel label A
- Energielabel Woonhuis label D
- De woning is grotendeels voorzien van houten kozijnen met Dubbel glas, deels nog enkel glas.
- Schuifpui naar het dakterras is kunststof met dubbel glas.
- De winkel is verhuurd. En zal in verhuurde staat worden overgedragen. Huurtermijn tot 01-01-2031.
- De bestemming van het pand is Centrum-1
- Perceel 336 m²
- Winkel en magazijn 95 m²
- Woonoppervlakte woonhuis 248 m²
- Overige inpandige ruimte 145 m²
- Gebouw gebonden buitenruimte 48 m²

Kenmerken

Overdracht
Referentienummer 367
Vraagprijs € 649.000,- k.k.
Inrichting Niet gestoffeerd
Inrichting Niet gemeubileerd
Aanvaarding Direct
Laatste wijziging Woensdag 17 december 2025
Bouw
Type object Woonhuis, herenhuis, geschakelde woning
Soort bouw Bestaande bouw
Bouwperiode 1900
Dakbedekking Dakpannen
Type dak Zadeldak
Isolatievormen Dakisolatie
Muurisolatie
Oppervlaktes en inhoud
Perceeloppervlakte 336 m²
Woonoppervlakte 248 m²
Inhoud 1.705 m³
Oppervlakte overige inpandige ruimten 145 m²
Oppervlakte gebouwgebonden buitenruimte 48 m²
Indeling
Aantal bouwlagen 4 (en 1 kelder)
Aantal kamers 8 (waarvan 7 slaapkamers)
Aantal badkamers 2 (en 1 apart toilet)
Energieverbruik
Energielabel D
CV ketel
Warmtebron Gas
Uitrusting
Verwarmingssysteem Centrale verwarming
Heeft airco Ja
Kadastrale gegevens
Kadastrale aanduiding Gulpen-Wittem A 5162
Perceeloppervlakte 336 m²
Omvang Geheel perceel
Neem contact met mij op

Plattegronden

Brochure(s) en overige bijlagen