Onder bod: Charles Frehenstraat 67, 6374 EL Landgraaf

€ 289.000,- k.k.

Beschrijving

Ontdek deze speelse split-level hoekwoning in het geliefde Waubach! Deze goed onderhouden woning combineert een moderne, frisse uitstraling met volop leefruimte.

De woning beschikt over drie comfortabele slaapkamers, een inpandige garage en een zonnige tuin waar je heerlijk kunt genieten van het buitenleven. Dankzij de speelse split-level indeling voelt het huis ruim, licht en verrassend aan.

Interesse in deze woning? Stuur een e-mail naar info@laan20.nl en wij nemen graag contact met je op om een bezichtiging in te plannen.

Globale indeling

Straatniveau
Via de entree kom je in de hal met toegang tot de meterkast, een moderne toiletruimte met fonteintje, de inpandige garage en de trap naar de woonniveaus.

Niveau 1
Op dit niveau bevindt zich de woonkeuken met eetkamer (circa 20 m²). De keuken is opgesteld in een praktische dubbele opstelling en voorzien van diverse inbouwapparatuur, waaronder een vaatwasser, koelkast, grilloven, afzuigkap en een 5-pits gasstel. Dankzij de loopdeur naar de tuin sta je hier in directe verbinding met buiten – ideaal voor zomerse diners of een kop koffie in de zon.

Niveau 2
De sfeervolle woonkamer (ca. 24,3 m²) ligt een niveau hoger en is afgewerkt met een mooie parketvloer. Door de split-level indeling voelt deze ruimte extra licht en ruim aan, met een fijne plek om te ontspannen of gasten te ontvangen.

Niveau 3
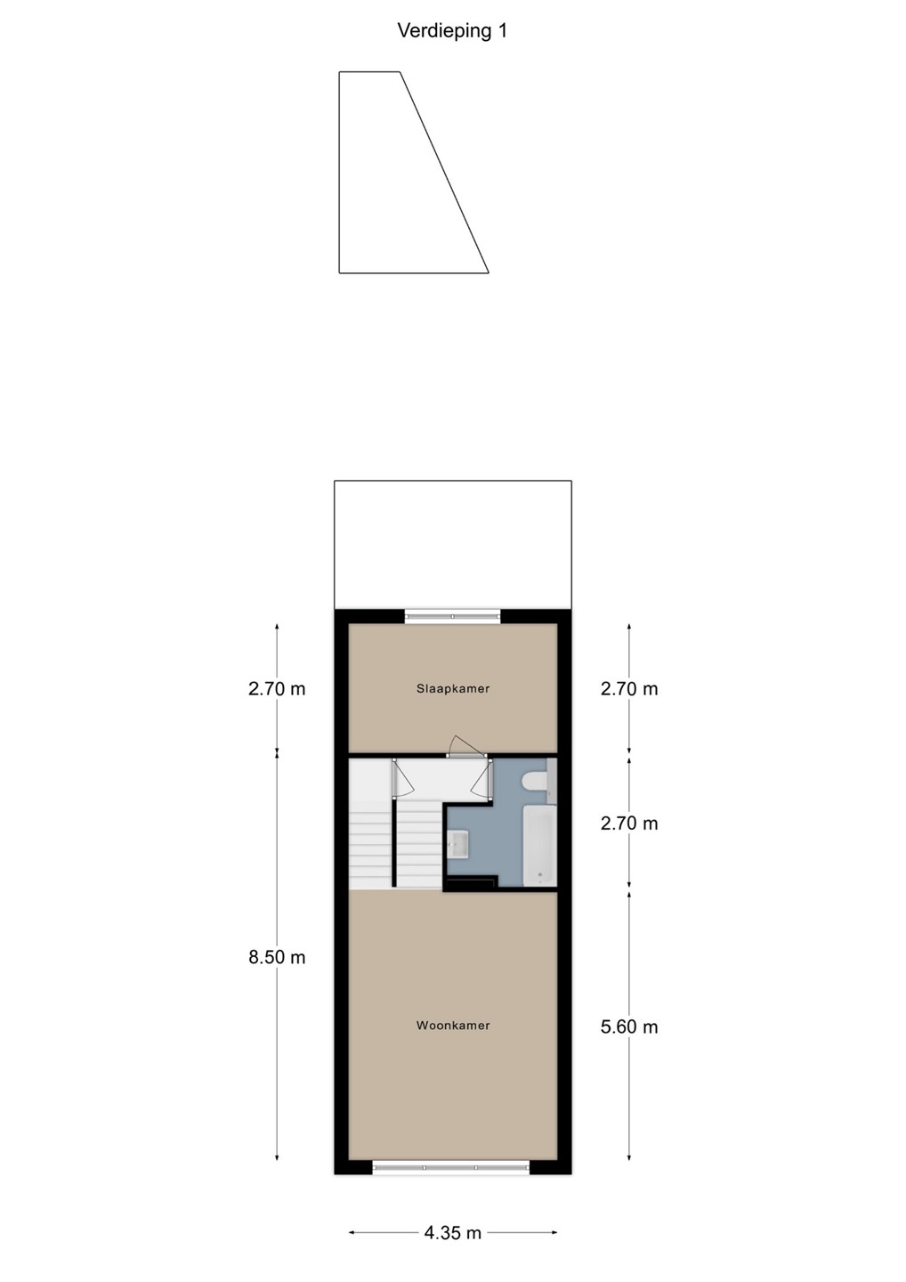
De overloop geeft toegang tot een comfortabele slaapkamer en de badkamer.
De slaapkamer (ca. 11,7 m²) ligt aan de achterzijde van de woning.
De badkamer (ca. 5 m²) is compleet uitgerust met een ligbad met douche, toilet en wastafel.

Niveau 4
Op de bovenste verdieping bevinden zich nog twee slaapkamers (ca. 12 m² en 9 m²). Eén van de kamers beschikt over een praktische bergkast.
Beide kamers zijn voorzien van een nette laminaatvloer. Daarnaast is er op de overloop een handige muurkast aanwezig voor extra bergruimte.

Extern
De woning beschikt over een inpandige garage (ca. 16 m²) met een elektrische sectionaalpoort. Hier is ruimte voor één personenauto en daarnaast biedt de garage praktische extra bergruimte. Ook bevinden zich hier de witgoedaansluitingen, de omvormer van de zonnepanelen en de HR-combiketel (2015, huur).

De zonnige achtertuin, gelegen op het zuiden, is een heerlijke plek om van het buitenleven te genieten. Dankzij de overkapping kun je hier ook bij minder mooi weer comfortabel buiten zitten. Daarnaast is er een vrijstaande stenen berging (ca. 8 m²) aanwezig, ideaal voor fietsen en tuingereedschap. Aan de zijkant van de woning bevindt zich bovendien nog een extra stuk tuin met gazon, wat zorgt voor een ruim en groen gevoel rondom de woning.

Omgeving
De woning ligt in een rustige, doodlopende straat in het geliefde Waubach. Alle dagelijkse voorzieningen, zoals winkels, scholen en sportfaciliteiten, bevinden zich op loopafstand. Ook het openbaar vervoer is in de directe omgeving aanwezig, waardoor omliggende plaatsen eenvoudig bereikbaar zijn.

Dankzij de gunstige ligging ben je bovendien binnen enkele minuten op de uitvalswegen richting Heerlen, Maastricht en Aken. In de omgeving vind je daarnaast diverse mooie fiets- en wandelroutes, waardoor je volop kunt genieten van het karakteristieke Limburgse landschap.

Relevante cijfers en informatie
- Bouwjaar 1976
- Perceeloppervlakte 179 m²
- Woonoppervlakte 105 m²
- Energielabel C
- Voorzien van kunststof kozijnen met HR++ beglazing
- Dakisolatie
- HR Combiketel 2015, gehuurd, € 37,80 per maand
- Zonnepanelen, 10 stuks, eigendom
- Deels voorzien van rolluiken en horren
- Aanvaarding in overleg

Alle verstrekte informatie moet beschouwd worden als een uitnodiging tot het doen van een bod of om in onderhandeling te treden. Er kunnen geen rechten worden ontleend aan deze woning informatie. Alle maten zijn circa maten.
Ter bescherming van de belangen van zowel kopers als ook verkopers wordt uitdrukkelijk gesteld dat een koopovereenkomst met betrekking tot deze onroerende zaak eerst dan tot stand komt nadat kopers en verkopers de koopovereenkomst hebben getekend (schriftelijkheidsvereiste).

Kenmerken

Overdracht
Referentienummer 415
Vraagprijs € 289.000,- k.k.
Status Onder bod
Aanvaarding In overleg
Laatste wijziging Woensdag 8 april 2026
Bouw
Type object Woonhuis, eengezinswoning, hoekwoning, splitlevelwoning
Soort bouw Bestaande bouw
Bouwperiode 1971
Type dak Platdak
Isolatievormen Dakisolatie
HR-glas
Oppervlaktes en inhoud
Perceeloppervlakte 179 m²
Woonoppervlakte 105 m²
Inhoud 405 m³
Oppervlakte overige inpandige ruimten 16 m²
Oppervlakte externe bergruimte 8 m²
Oppervlakte gebouwgebonden buitenruimte 8,2 m²
Indeling
Aantal bouwlagen 3
Aantal kamers 4 (waarvan 3 slaapkamers)
Aantal badkamers 1 (en 1 apart toilet)
Tuin
Type Achtertuin
Oriëntering Zuiden
Heeft een achterom Ja
Energieverbruik
Energielabel C
CV ketel
CV ketel Hesi Eco Comfort HRC 2-3
Warmtebron Gas
Bouwjaar 2015
Combiketel Ja
Eigendom Huur
Uitrusting
Aantal parkeerplaatsen 2
Aantal overdekte parkeerplaatsen 1
Warm water CV-ketel
Verwarmingssysteem Centrale verwarming
Badkamervoorzieningen Douche
Ligbad
Toilet
Wastafel
Wastafelmeubel
Parkeergelegenheid Inpandige garage
Tuin aanwezig Ja
Heeft een garage Ja
Heeft schuur/berging Ja
Heeft zonnepanelen Ja
Kadastrale gegevens
Kadastrale aanduiding Landgraaf C 6234
Perceeloppervlakte 79 m²
Omvang Geheel perceel
Kadastrale aanduiding Landgraaf C 5915
Perceeloppervlakte 100 m²
Omvang Geheel perceel
Neem contact met mij op

Plattegronden

Brochure(s) en overige bijlagen