Verkocht: Kakertsweg 56, 6371 GD Landgraaf

Beschrijving

Ontdek deze charmante vrijstaande woning, gelegen in een fijne en rustige wijk tegenover het kapellerbos. Een warm en sfeervol huis waar ruimte en comfort samenkomen. Dankzij de royale aanbouw beschikt de begane grond over verrassend veel leefruimte, ideaal voor een gezellig gezinsleven en het ontvangen van gasten.

De woning biedt drie slaapkamers, een garage en een fraaie zonnige tuin rondom waar je op elk moment van de dag van zon of schaduw kan genieten. Met energielabel C, twee airco-units en 13 zonnepanelen is het huis bovendien comfortabel én energiezuinig.

Kortom: een sfeervolle vrijstaande woning met ruimte, groen en comfort op een prachtige locatie.

Interesse? Stuur een mail naar info@laan20.nl en wij nemen contact met je op voor het plannen van een bezichtiging.

Globale indeling
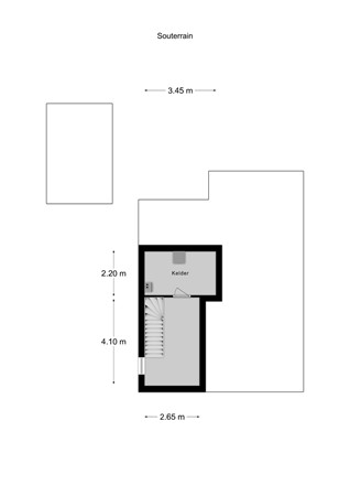
Souterrain
Het souterrain beschikt over twee praktische kelderruimtes. Kelderruimte 1 (ca. 7,6 m²) is ingericht met de opstelplaats voor de HR-combiketel en aansluitingen voor wasmachine en droger. Kelderruimte 2 (ca. 10,8 m²) is eveneens netjes afgewerkt en droog, ideaal voor extra opslag of provisie.

Begane grond
Via de entree/hal, met meterkast en een vaste trap naar zowel de eerste verdieping als het souterrain, kom je de woning binnen.
Hier bevindt zich ook de nette toiletruimte met een zwevend toilet en fonteintje.
De lichte en sfeervolle woonkamer vormt het hart van het huis en is voorzien van een airco-unit. Dankzij de schuifpui sta je in directe verbinding met de tuin.
Door de royale aanbouw is het woon- en keukengedeelte op de begane grond uitgegroeid tot een bijzonder ruime leefruimte van maar liefst ca. 57m².
De gehele begane grond is afgewerkt met een laminaatvloer.
De moderne keuken is compleet uitgerust met diverse inbouwapparatuur, waaronder een inductiekookplaat, combi-oven, koel-vriescombinatie, afzuigkap en vaatwasser.

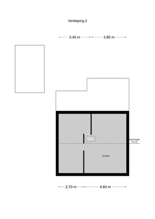
Eerste verdieping
De overloop is voorzien van airconditioning en geeft toegang tot drie slaapkamers en de badkamer. Zowel de overloop als de slaapkamers zijn afgewerkt met een stijlvolle PVC-vloer.
Twee ruime slaapkamers. Slaapkamer 1 (ca. 13,3m²) en slaapkamer 2 (ca. 12,4m²)
Slaapkamer 3 (ca. 5 m²) beschikt over toegang tot het balkon en een aangrenzende toiletruimte met een modern zwevend toilet.
De moderne badkamer (ca. 7 m²) is luxe uitgevoerd met een betegelde vloer, een inloopdouche, een whirlpool en een dubbele wastafel.

Tweede verdieping
Via een vlizotrap bereik je de praktische bergzolder, ideaal voor het opbergen van seizoensspullen.

Extern
Rondom de woning ligt een fraai aangelegde zonnige tuin. De hoofdtuin is gelegen op het noordoosten en biedt veel privacy zonder inkijk. Hier vindt je ook een terras met een vrijstaande overkapping, waar je heerlijk beschut kunt zitten.
Daarnaast beschikt de woning over een garage met elektrische sectionaalpoort en een wateraansluiting.
Parkeren is geen probleem: er is ruimte voor één auto in de garage en circa drie auto’s op de eigen oprit.

Omgeving
De woning aan de Kakertweg 56 is gelegen in een rustige en prettige woonwijk in Landgraaf. In de directe omgeving bevinden zich basisscholen, supermarkten en diverse winkels, die op korte afstand bereikbaar zijn. Ook openbaar vervoer is in de nabijheid aanwezig, waardoor omliggende plaatsen eenvoudig te bereiken zijn.
Dankzij de gunstige ligging ben je binnen enkele minuten op uitvalswegen richting onder andere Heerlen, Maastricht en Aken.

De woning ligt bovendien in een rustige wijk met volop groen in de omgeving. Aan de overzijde van de woning bevindt zich het kapellerbos, wat zorgt voor een vrij en natuurlijk uitzicht en volop mogelijkheden om te wandelen en te ontspannen in de natuur. Daarnaast zijn er in de omgeving diverse mooie fiets- en wandelroutes te vinden, waardoor je optimaal kan genieten van het Limburgse landschap.

Relevante cijfers en informatie
- Bouwjaar 1965, aanbouw 1976. Gerenoveerd in 2018/2019.
- Perceeloppervlakte 411 m²
- Woonoppervlakte 114 m²
- Overige inpandige ruimte 19 m²
- Externe bergruimte 13 m ²
- Energielabel C
- Dak- en spouwmuurisolatie
- HR combiketel, Nefit 2018 (eigendom)
- 2 airco-units woonkamer en eerste verdieping, 2024 (eigendom)
- 13 zonnepanelen, 2024 (eigendom)
- Aanvaarding in overleg, op korte termijn mogelijk

Alle verstrekte informatie moet beschouwd worden als een uitnodiging tot het doen van een bod of om in onderhandeling te treden. Er kunnen geen rechten worden ontleend aan deze woning informatie. Alle maten zijn circa maten.
Ter bescherming van de belangen van zowel kopers als ook verkopers wordt uitdrukkelijk gesteld dat een koopovereenkomst met betrekking tot deze onroerende zaak eerst dan tot stand komt nadat kopers en verkopers de koopovereenkomst hebben getekend (schriftelijkheidsvereiste).

Kenmerken

Overdracht
Referentienummer 427
Vraagprijs € 475.000,- k.k.
Status Verkocht
Aanvaarding In overleg
Laatste wijziging Vrijdag 10 april 2026
Bouw
Type object Woonhuis, eengezinswoning, vrijstaande woning
Soort bouw Bestaande bouw
Bouwperiode 1965
Dakbedekking Bitumen
Type dak Zadeldak
Isolatievormen Dakisolatie
Grotendeels dubbel glas
HR-glas
Muurisolatie
Oppervlaktes en inhoud
Perceeloppervlakte 411 m²
Woonoppervlakte 114 m²
Inhoud 485 m³
Oppervlakte overige inpandige ruimten 19 m²
Oppervlakte externe bergruimte 13 m²
Oppervlakte gebouwgebonden buitenruimte 2 m²
Indeling
Aantal bouwlagen 3 (en 1 kelder)
Aantal kamers 4 (waarvan 3 slaapkamers)
Aantal badkamers 1 (en 2 aparte toiletten)
Tuin
Type Tuin rondom
Staat Prachtig aangelegd
Energieverbruik
Energielabel C
CV ketel
CV ketel Nefit
Warmtebron Gas
Bouwjaar 2018
Combiketel Ja
Eigendom Eigendom
Uitrusting
Aantal parkeerplaatsen 4
Aantal overdekte parkeerplaatsen 1
Warm water CV-ketel
Verwarmingssysteem Airconditioning
Centrale verwarming
Parkeergelegenheid Vrijstaande stenen garage
Heeft airco Ja
Tuin aanwezig Ja
Heeft een garage Ja
Heeft rolluiken Ja
Heeft zonnepanelen Ja
Kadastrale gegevens
Kadastrale aanduiding Landgraaf E 548
Perceeloppervlakte 411 m²
Omvang Geheel perceel

Plattegronden

Brochure(s) en overige bijlagen