Onder bod: Bronnenstraat 24, 6291 VM Vaals

€ 229.000,- k.k.

Beschrijving

Op zoek naar een fijn (t)huis in Vaals? Deze ruime tussenwoning aan de Bronnenstraat 24 biedt, vier slaapkamers, een lichte woonkamer en een onderhoudsvriendelijke tuin. Dankzij het energielabel C woon je hier comfortabel en betaalbaar. Ideaal voor starters! Hier voel je je direct thuis!

Interesse in deze woning? Stuur een mail naar info@laan20.nl en wij nemen contact met je op voor het plannen van een bezichtiging.

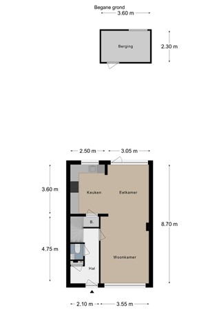
Globale indeling
Begane grond
Entree met toegang tot meterkast, nette toiletruimte en woonkamer. Trap naar de eerste verdieping.
Lichte woon/eetkamer van totaal 30 m². Open keuken (9 m²) voorzien van inductie kookplaat, koelkast, diepvries, oven en afzuigkap. In de keuken bevinden zich ook de witgoedaansluitingen. Bergruimte onder de trap.

Eerste verdieping
Overloop met toegang naar vier slaapkamers en de badkamer.
De slaapkamers hebben een grootte van 12 m² - 9,3 m² - 8,5 m² - 7 m².
Badkamer (5,3 m²) met ligbad, douche, wastafel en toilet.

Extern
Onderhoudsvriendelijke achtertuin gelegen op het zuidwesten.
De woning beschikt over een berging in de tuin van 8,3 m², die nog wat aandacht en onderhoud kan gebruiken.

Omgeving
De woning is gelegen aan de rand van het Bloemendalpark, nabij het centrum van Vaals. Diverse voorzieningen, supermarkt, winkels, openbaar vervoer en basisschool liggen op loopafstand.
Ook de Duitse en Belgische bus zijn op 5 minuten loopafstand bereikbaar.
Vanaf de Bronnenstraat bent u in een mum van tijd op een rondweg, doorgaande weg of snelweg. Die brengt u direct waar u zijn moet, of dat nu Heerlen, Maastricht, Aken of Luik is. De woning ligt direct aan het groen met vele mooie fiets en wandelroutes.

Relevante cijfers en informatie
- Bouwjaar 1972
- Energielabel C
- HR Combiketel (2021), huur Hesi € 39,78 per maand
- Begane grond kunststof kozijnen met dubbele beglazing, eerste verdieping houten kozijnen met enkel beglazing
- Perceeloppervlakte 129 m²
- Woonoppervlakte 95 m²
- Externe bergruimte 8,3 m²
- Aanvaarding per direct

Alle verstrekte informatie moet beschouwd worden als een uitnodiging tot het doen van een bod of om in onderhandeling te treden. Er kunnen geen rechten worden ontleend aan deze woning informatie. Alle maten zijn circa maten.
Ter bescherming van de belangen van zowel kopers als ook verkopers wordt uitdrukkelijk gesteld dat een koopovereenkomst met betrekking tot deze onroerende zaak eerst dan tot stand komt nadat kopers en verkopers de koopovereenkomst hebben getekend (schriftelijkheidsvereiste).

Kenmerken

Overdracht
Referentienummer 390
Vraagprijs € 229.000,- k.k.
Inrichting Niet gestoffeerd
Inrichting Niet gemeubileerd
Status Onder bod
Aanvaarding Direct
Laatste wijziging Woensdag 3 december 2025
Bouw
Type object Woonhuis, eengezinswoning, tussenwoning
Soort bouw Bestaande bouw
Bouwperiode 1972
Isolatievormen Dakisolatie
Grotendeels dubbel glas
Spouwmuren
Oppervlaktes en inhoud
Perceeloppervlakte 129 m²
Woonoppervlakte 95 m²
Inhoud 332 m³
Oppervlakte externe bergruimte 8,3 m²
Indeling
Aantal bouwlagen 2
Aantal kamers 5 (waarvan 4 slaapkamers)
Aantal badkamers 1 (en 1 apart toilet)
Tuin
Type Achtertuin
Hoofdtuin Ja
Oriëntering Zuid-west
Energieverbruik
Energielabel C
CV ketel
CV ketel Nefit
Warmtebron Gas
Bouwjaar 2021
Combiketel Ja
Eigendom Huur
Uitrusting
Warm water CV-ketel
Verwarmingssysteem Centrale verwarming
Badkamervoorzieningen Douche
Ligbad
Toilet
Wastafel
Tuin aanwezig Ja
Heeft schuur/berging Ja
Kadastrale gegevens
Kadastrale aanduiding Vaals E 549
Perceeloppervlakte 129 m²
Omvang Geheel perceel
Eigendomsituatie Eigen grond
Neem contact met mij op

Plattegronden

Brochure(s) en overige bijlagen