Te koop: Burgemeester Rhoenstraat 4, 6291 KN Vaals

€ 395.000,- k.k.

Beschrijving

Sfeervolle, instapklare gezinswoning met vier slaapkamers, garage en energielabel A.
De perfecte plek voor wie comfortabel, duurzaam en centraal wil wonen.

Interesse? Stuur een mail naar info@laan20.nl en wij nemen contact met je op voor het plannen van een bezichtiging.

Globale indeling

Begane grond
Entree/hal met meterkast en toegang naar de woonkamer en toilet.
Toiletruimte voorzien van hangend toilet en fonteintje.
Woonkamer totaal 33 m² voorzien van houten vloer, met een vaste trap naar de eerste verdieping.
Halfopen moderne keuken (2010), voorzien van diverse inbouwapparatuur met onder andere een inductie kookplaat, combi-oven, koelkast, vaatwasser en afzuigkap.
Toegang tot de tuin middels enkele deur.

Eerste verdieping
Overloop met toegang naar slaapkamer I (16 m²), slaapkamer II (7,5 m²) en slaapkamer III (5,5 m²).
Moderne badkamer (2010), voorzien van inloopdouche, hangend toilet en wastafelmeubel.

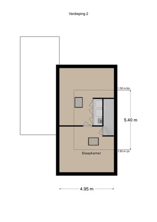
Tweede verdieping
Slaapkamer/hobbykamer (10 m²).
Wasruimte en berging (10 m²), met opstelplaats voor hr combi ketel en WTW installatie (beide 2010, eigendom).

Extern
Garage (18 m²) met elektrische sectionaalpoort. Voor de garage bevindt zich een oprit voor twee personenauto's.
Verzorgd aangelegde voortuin. Onderhoudsvriendelijke, zonnige achtertuin gelegen op het noordoosten met een royaal bestraat terras.

De omgeving
De woning is gelegen in een jonge, kindvriendelijke buurt in Vaals.
Basisschool, supermarkten en winkels bevinden zich op loopafstand.
Openbaar vervoer en de Duitse en Belgische bus zijn tevens op loopafstand bereikbaar.
Vanaf de Burgemeester Rhoenstraat bent u in een mum van tijd op een rondweg, doorgaande weg of snelweg. Die brengt u direct waar u zijn moet, of dat nu Heerlen, Maastricht, Aken of Luik is. De woning ligt dicht bij het groen met vele mooie fiets en wandelroutes.

Relevante cijfers en informatie
- Bouwjaar 2010
- Perceeloppervlakte 211 m²
- Woonoppervlakte 112 m²
- Overige inpandige ruimte 18 m²
- Energielabel A
- Volledig geïsoleerd
- De gehele woning is voorzien van houten kozijnen met HR++ beglazing. Tevens voorzien van horren
- HR combiketel, 2010, Intergas (eigendom)
- WTW installatie, 2010, (eigendom)
- Aanvaarding in overleg, bij voorkeur juni 2026

Alle verstrekte informatie moet beschouwd worden als een uitnodiging tot het doen van een bod of om in onderhandeling te treden. Er kunnen geen rechten worden ontleend aan deze woning informatie. Alle maten zijn circa maten.
Ter bescherming van de belangen van zowel kopers als ook verkopers wordt uitdrukkelijk gesteld dat een koopovereenkomst met betrekking tot deze onroerende zaak eerst dan tot stand komt nadat kopers en verkopers de koopovereenkomst hebben getekend (schriftelijkheidsvereiste).

Kenmerken

Overdracht
Referentienummer 378
Vraagprijs € 395.000,- k.k.
Inrichting Niet gestoffeerd
Inrichting Niet gemeubileerd
Aanvaarding In overleg
Laatste wijziging Dinsdag 2 december 2025
Bouw
Type object Woonhuis, eengezinswoning, geschakelde twee onder een kap woning
Soort bouw Bestaande bouw
Bouwperiode 2010
Dakbedekking Dakpannen
Type dak Zadeldak
Isolatievormen Dakisolatie
HR-glas
Muurisolatie
Vloerisolatie
Volledig geïsoleerd
Oppervlaktes en inhoud
Perceeloppervlakte 211 m²
Woonoppervlakte 112 m²
Inhoud 535 m³
Oppervlakte overige inpandige ruimten 18 m²
Oppervlakte gebouwgebonden buitenruimte 7,5 m²
Indeling
Aantal bouwlagen 3
Aantal kamers 5 (waarvan 4 slaapkamers)
Aantal badkamers 1 (en 1 apart toilet)
Tuin
Type Achtertuin
Oriëntering Noord-oost
Staat Normaal
Energieverbruik
Energielabel A
CV ketel
CV ketel Intergas
Warmtebron Gas
Bouwjaar 2010
Combiketel Ja
Eigendom Eigendom
Uitrusting
Aantal parkeerplaatsen 2
Warm water CV-ketel
Verwarmingssysteem Centrale verwarming
Warmterecuperatiesysteem
Badkamervoorzieningen Inloopdouche
Toilet
Wastafel
Parkeergelegenheid Aangebouwde stenen garage
Tuin aanwezig Ja
Heeft een garage Ja
Kadastrale gegevens
Kadastrale aanduiding Vaals A 10564
Perceeloppervlakte 211 m²
Omvang Geheel perceel
Neem contact met mij op

Plattegronden

Brochure(s) en overige bijlagen