Onder bod: Wolfskuilenweg 18, 6291 EE Vaals

€ 279.000,- k.k.

Beschrijving

Verrassend ruime tussenwoning met serre en drie volwaardige slaapkamers.

Deze goed ingedeelde tussenwoning uit 1983 biedt verrassend veel ruimte, een fijne lichtinval en een praktische indeling. Met drie ruime slaapkamers, een serre en een zonnige tuin met achterom is dit een ideale woning voor starters en jonge gezinnen.

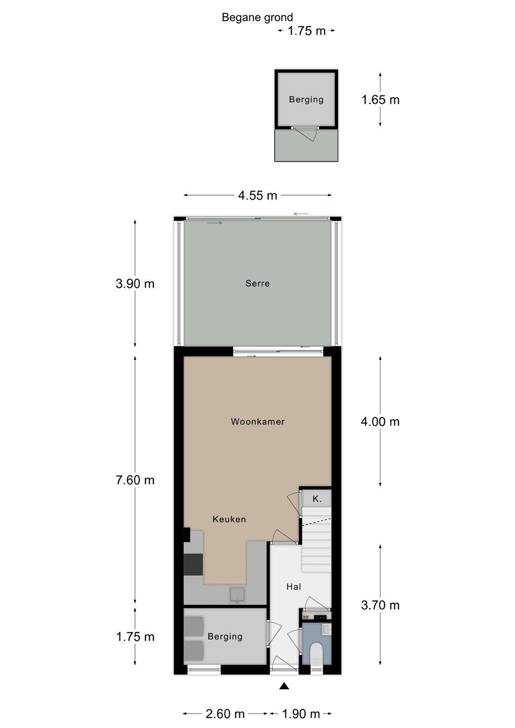
Begane grond
Via de entree/hal met meterkast en vaste trap naar de eerste verdieping betreedt u de woning. Op de begane grond bevindt zich tevens een praktische berging (4,5m²) met witgoedaansluitingen.
De ruime woonkamer van circa 25 m² is licht en sfeervol en staat via een schuifpui in directe verbinding met de serre en achtertuin. De open keuken is opgesteld in een hoek en voorzien van diverse inbouwapparatuur, waaronder een combi-oven, inductiekookplaat, afzuigkap en vaatwasser. De gehele begane grond is afgewerkt met een nette laminaatvloer. Aansluitend aan de woonkamer bevindt zich de serre van 18m².

Eerste verdieping
De overloop biedt toegang tot twee ruime slaapkamers van respectievelijk circa 14,3 m² en 12,5 m². De eenvoudige maar functionele badkamer( 5,4m²) is uitgerust met een hoekbad, toilet en wastafel. Via een ruimtebesparende vaste trap bereikt u de tweede verdieping.

Tweede verdieping
Op deze verdieping bevindt zich een verrassend ruime derde slaapkamer (30m²) met twee dakkapellen, wat zorgt voor extra licht en ruimte. Daarnaast is er een praktische inbouwkast met de WTW-installatie en HR-combiketel.

Buitenruimte
De achtertuin, gelegen op het Zuidwesten, beschikt over een tuinhuis ideaal voor fietsen of tuinmateriaal. En een handige achterom.

Bijzonderheden
- Bouwjaar: 1983
- Woonoppervlakte: ca. 118 m²
- Perceeloppervlakte: 130 m²
- Voorzien van 3 zonnepanelen
- Energielabel volgt
- Grotendeels voorzien van kunsstof kozijnen met HR++ glas en triple glas
- Aanvaarding: medio mei

Kenmerken

Overdracht
Referentienummer 402
Vraagprijs € 279.000,- k.k.
Inrichting Niet gestoffeerd
Inrichting Niet gemeubileerd
Status Onder bod
Aanvaarding Per vrijdag 15 mei 2026
Laatste wijziging Vrijdag 27 februari 2026
Bouw
Type object Woonhuis, eengezinswoning, tussenwoning
Soort bouw Bestaande bouw
Bouwperiode 1983
Dakbedekking Dakpannen
Type dak Zadeldak
Oppervlaktes en inhoud
Perceeloppervlakte 130 m²
Woonoppervlakte 118 m²
Inhoud 413 m³
Indeling
Aantal bouwlagen 3
Aantal kamers 4 (waarvan 3 slaapkamers)
Aantal badkamers 1 (en 1 apart toilet)
Tuin
Type Achtertuin
Oriëntering Zuid-west
Staat Normaal
Energieverbruik
Energielabel A
CV ketel
CV ketel Remeha
Bouwjaar 2006
Uitrusting
Warm water CV-ketel
Verwarmingssysteem Centrale verwarming
Tuin aanwezig Ja
Heeft zonnepanelen Ja
Kadastrale gegevens
Kadastrale aanduiding Vaals E 882
Perceeloppervlakte 130 m²
Omvang Geheel perceel
Neem contact met mij op

Plattegronden

Brochure(s) en overige bijlagen